Watchdog Foundation

Watchdog Foundation

 

2025 Fall Edition

 
watchdog
2025

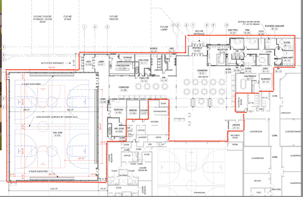
Beresford School District - South Campus Building Project

The Beresford School District received a low bid of $6,514,740 with an add alternate bid of $43,603 from Puetz Construction regarding the South Campus addition. The South Campus addition will include the following project components: a secure academic entrance, an activity and event lobby, a new concessions area, new lobby restrooms, a kitchen remodel (including a walk-in cooler and freezer, dry storage), an auxiliary gymnasium (with two high school cross courts), and office space remodels. 

To date, we have achieved the following project milestones: secured financing via Capital Outlay Certificates, obtained stakeholder input via focus groups meeting with Architecture Incorporated (AI), developed renderings and construction plans, completed soil borings, and completed project bidding. To see additional updates about the project, check on status updates by visiting the District's home page. 

A majority of the work will take place from March 2026 through November 2026. Work will start in the Multi-Purpose Room to begin renovations so the new activity entrance, concession stands, and restrooms are ready for the start of school in 2026.

 

Jim Sorensen Court and Jim Heeren Field at Cortland Carnes Stadium

While the district prepares for the future, it also looks back to recognize essential contributors who have made lasting impacts through their service, passion, and dedication. Mr. Jim Sorensen was a high school social studies teacher, head girls’ and boys’ golf coach, head boys’ basketball coach, and assistant girls’ basketball coach during his time at Beresford High School. He was the head boys’ basketball coach at Beresford High School for 36 years. His head boys’ basketball coaching record at Beresford High School was 474-310. His overall career head boys’ basketball coaching record was 494-327, with 27 winning Seasons. On December 19, 2024, the Beresford School District held the court dedication ceremony when the Watchdogs hosted the Flandreau Flyers. 

Mr. Jim Heeren was a science teacher, physical education teacher, head football coach, head wrestling coach, and Athletic Director during his 32-year career at Beresford Schools from 1967 to 1999. He spent 32 years coaching Watchdog football, 31 years as the head coach, where his teams compiled a career record of 177-114-2. The Watchdogs qualified for state playoffs 17 times in 20 years of playoff events. His team won 8 conference championships. In 1979 and 1980, his teams were State Champs based on sportswriters' and coaches' polls when there were only two classes of 11-man football, and in 1987, the Watchdogs won the State Football 11-B Championship, beating Flandreau 7-6. On August 29, 2025, the Beresford School District held the field dedication ceremony when the Watchdogs hosted the Parker Pheasants.

SRCM

Watchdog Hall of Fame - Class of 2025

2025

The eighth Watchdog Hall of Fame induction ceremony was held on Saturday, September 27, 2025, at 7:00 p.m. (Bridges of Beresford). At 6:00 p.m., inductees, friends, family, and community members enjoyed a catered banquet from Cleavers. Ninety-six people enjoyed the meal. During the evening, Dr. Kristin Olbertson (Academics), John and Sandy Fahlberg (Fine Arts), Mr. Kyle McKelvey (Athletics), Mr. Wayne Haensel (Athletics), and Mr. Kevin Nelson (Distinguished Service) were inducted into the Watchdog Hall of Fame. 

The Watchdog Hall of Fame recognizes and honors the accomplishments and outstanding character of individuals in the four Pillar areas of Academics/Achievement, Fine Arts, Athletics, and Distinguished Service. Individuals are recognized for their outstanding contributions and dedication to the Beresford School District and/or for demonstrating how their accomplishments within society positively reflect upon the educational quality and stature of Beresford Schools.

Introductory speakers included Mrs. Ann Tornberg, Mrs. Marsha Nelson, Mr. Owen Reinalda, Mr. Kyle DeLay, and Mrs. Jane Carlson. 

Are you interested in seeing the program? If so, check out the links below.

Watchdog Hall of Fame Program (8) 2025

2025 Ceremony (Video)

2025 Photographs 

We need your help to continue this tradition!

If you know of a Watchdog of Excellence, consider nominating them for our Watchdog Hall of Fame. To submit an online nomination, click here!

 

2025 Fall Achievements

all four

July

Lucy Farley (Class of 2022) was named a Truman Scholar finalist. The last finalist from the District was Mr. Caleb Weiland (Class of 2020). 

August 

The first day of school was on August 21, 2025. The District welcomed ~610 learners to the 2025-2026 school year. 

Senior students selected their Homecoming Royalty the week of August 25, 2025. Queen candidates are Kendra Ellis, Harley Koth, Ella Merriman, Addison Potter, and Tavyn Valder. King candidates are Payden Hoffman, Malachi James, Connor Neumayr, Tiegen Nyhaug, and Kasen Voss. 

September

Ella Merriman was named a National Merit Scholarship program semifinalist. Ella Merriman is one of 16,000 high school seniors to receive such recognition this year. Over 1.3 million juniors from about 20,000 high schools across the country entered the 2026 competition. The semifinalists represent less than one percent of U.S. high school seniors.

The eighth Watchdog Hall of Fame was held on Saturday, September 27, 2025. To see the program, click here.

During Coronation, Ella Merriman was named HoCo queen and Malachi James was named HoCo King. 

October

The staff and students of BHS selected Harley Koth as their representative for the DAR Good Citizen Award. Harley was chosen for exemplifying the four key qualities recognized by the award: dependability, service, leadership, and patriotism.

 Laney Andrews (Class of 2025)  received a Gold and 1st in Swine Placement for her supervised agricultural experience at the National FFA Convention. 

The Ag Communications team (2025) earned Silver at the National FFA Convention. Team members included: Allie Westra, Kylie Mockler, Capri Mullinix, and Carley Crist. 

athletics

May

State Track and Field Qualifiers:

Shot Put AND Discus: Joe Sharpe; High Jump: Jade Rhody; 4X800: Payden Hoffman, Hayden Homandberg, Espyn Klungseth, Josh Merriman, Hunter Penn; 4X100 G: Kennedy Merrigan, Kylie Mockler, Lily Seivert, Megan Stenen, Tavyn Valder; 4X100 B: Jax Fickbohm, Aidan Hamm, Malachi James, Dexton Miller, Elias Perez, Kohen Schurch; Medley Relay: Jax Fickbohm, Aidan Hamm, Hayden Homandberg, Malachi James, Hunter Penn, Elias Perez, Kohen Schurch; 4X200 B: Jax Fickbohm, Aidan Hamm, Malachi James, Dexton Miller, Elias Perez, Kohen Schurch; 400M: Malachi James; 300M Hurdles: Aidan Hamm, Elias Perez; 4X400 B: Jax Fickbohm, Aidan Hamm, Hayden Homandberg, Malachi James, Micah James, Elias Perez.

The Watchdog Softball team finished the year 14-11. The team hosted a So-Dak 16 game on May 27, 2025. The Watchdogs fell to the Tanagers.

August

The Beresford School District hosted the annual Cross Country kickoff at the Bridges of Beresford. Five hundred and eighty-five athletes from 32 teams competed in the event. 

October

Kate Degen recorded her 1,000th career volleyball assist on Monday, October 20, 2025. The junior achieved the feat against Yankton.

Ella Merriman (6th), Molly O'Neil (12th), Lillie Boden (19th), Josh Merriman (7th), Hunter Penn (10th), Noah Halvorson (12th), Eli Schaap (18th), and Oliver Merriman (20th) earned a trip to State Cross Country at the Region 3A meet in Parkston, South Dakota. 

Lucas Anderson and Mason Hofer earned a trip to State Golf in the Region 2A golf tournament.

The State Competitive Cheer team competed at the state competition on October 25, 2025. Team members include: Reese Olson, Allie Van Kekerix, Bellamy Westra, Lillie Boden, Isabella Stewart, Keelea Reiser, Harper Olson, Emorie Ahlgrim, Maddie Samlaska, Addison Jensen, Emri Christensen, Jade Koth, Adelynn Schable, Natalie Buum, and Brynley Hansen.

 

About Us

The Watchdog Foundation supports the Beresford School District by connecting alumni, providing scholarships, and awarding grants. The Watchdog Foundation accepts memorials and monetary gifts. Gifts and memorials help immortalize the legacy of loved ones and friends. Donations make lasting impacts that help the Beresford community. After your donation is deposited, you will receive a statement from the South Dakota Community Foundation for tax purposes.

Former superintendent of schools, Mr. Brian Field, notes that he donates to the Watchdog Foundation because it directly impacts the people and places he cares about. Field notes, “By supporting education at a local level, I’m investing in the future of our community, ensuring that every student has the opportunity to succeed and contribute to the growth and well-being of the Beresford community.”

Current Superintendent, Dustin Degen, contributes to the Watchdog Foundation because he believes in the power of knowledge to change lives. Degen states, “Education is the key to unlocking potential, and by supporting this cause, I’m helping to create opportunities for the next generation to thrive and make a difference in the world.”

 
fine arts

June

Three high school students and twelve middle school students represented Beresford at the National Speech and Debate Association (NSDA) tournament, held in Des Moines from June 16 to June 20, 2025. Coach Ann Tornberg, Ojala Bartlett, Abby Cahoon, Sophia Penn, and Raiden Hanner, Emma Martinson, Julia Kinney, Natalie Buum, Zooey Bartlett, Anna Andrews,  Noah Peterson, Emma Cahoon and Sean Buum made the journey to the national tournament. 

September

The Watchdog Marching Festival took place on Friday, September 26, 2025. Over 1,000 students performed the Beresford community.

October

Sophomore Max Kinney was selected to the 2026 Midwest ACDA TB Honor Choir. Max will head to Milwaukee in February to represent Beresford and South Dakota.

The BHS Marching Band ended their season with another 1st place finish AND top score of the entire competition at the Sioux Valley Marching Festival. The Marching Watchdogs earned 1st place at every competition this year, along with a few other awards along the way.

Emma Andrews, Lillie Boden, Sophia Penn, Anna Latendresse, Izzy Beeson, Bellamy Westra, Hunter Penn, Colby Huot, Max Kinney, and Mobi Merriman earned All-State Choir status through the audition process. 

November

The Beresford High School Theatre Department performed “The Greek Mythology Olympiaganza,” a comedy by Don Zolidis.

Distinguished

May

On Thursday, May 22, 2025, the Beresford School District celebrated a successful 2024-2025 campaign with a staff breakfast and years of service celebration. Jill Boden, Julia Hughes, Dave Nelson (bus driver), Joyce Regehr, and Amber Sorensen were recognized for five years of service. Jodi Erickson and Dianne Nielsen were recognized for ten years of service. Scott Ebert, Thomas Merriman, and Rhonda Theel were recognized for 15 years of service. Sara Kobernusz and Kari Schroedermeier were recognized for 20 years of service. 

August

Deb Bergland rejoined the Beresford School District Board of Education for the 2025-2026 school year. With this year of service, Mrs. Bergland will have served on the District’s board of education for 20 years. 

September

The Watchdog Foundation held the annual BBQ. The community donated $1,400 at the free-will donation event. 

October

During conferences, Dr. Merriman hosted the first annual School-Community Night. Thirty-six community-school groups had informational booths.

Members of the Beresford Fire Department joined students across the district and served lunch. 

November

The Beresford School District held its annual Veterans Day program. Aaron Van Beek, the CEO of Midwest Honor Flight, addressed program attendees about service, sacrifice, and honor. Before the program, the National Honor Society hosted its Veterans Soup and Pie Social.

 
 
 
join the pack

Compiled and created by Macy Quartier